Сергей Саначин: «В суконных поисках Пушкин был не один»
История пребывания Пушкина в Казани. Часть 5-я

Сергей Саначин, архитектор и исследователь казанской истории, в своем рассказе о поездке Александра Пушкина в Казань в 1833 году дошел до событий первого дня пребывания поэта в городе. Ранее он поведал о причинах интереса «Солнца русской поэзии» к Пугачевскому бунту, объяснил, почему поездка была не напрасной, а также о том, как Пушкин въехал в город, после чего перешел к событиям первой ночи.
Первый день Пушкина в Казани: что же делать?
— Сергей Павлович, откуда известно, чем занимался Пушкин в нашем городе?
— На этот вопрос, исключая крохотные намеки в письмах Пушкина к жене и еще пары рассказов юных очевидцев, отвечают два источника. О первом дне в Казани — рукописная запись самого Пушкина на сложенном вчетверо листе формата примерно А4 с заглавной строчкой «Казань 6 снт. В. Петр. Бабинъ». О втором дне — подробнейшее письмо Александры Андреевны Фукс к ее приятельнице Елене Николаевне Мандрыке. Повода сомневаться в описанном в письме ни у кого и никогда из исследователей не было, поскольку Фукс, сама поэтесса, была горячей поклонницей Пушкина и даже вела с ним впоследствии переписку.
— Давайте перейдем к приключениям Пушкина в нашем городе. Что он делал в первый день?
— Это самый загадочный его день в Казани. Потому что кроме вышеназванной записи беседы Пушкина с суконщиком Василием Петровичем Бабиным других прямых сведений о нем нет. Кто же такой этот Бабин?
Пушкин, просмотревший в Петербурге уйму документов о Пугачевском бунте/восстании, видел, что они написаны с позиции одной из противоборствующих сторон —правительственной. Для полноты картины ему нужен был взгляд и с другой стороны: со стороны казаков в начальном гнезде бунта — в Уральске Оренбургского края, а в Казани — со стороны казанских суконщиков. Это и было главной задачей его турне в Поволжье и на Урал.
Из письма к жене мы знаем, что в Казани Пушкин «таскался по кабакам». Но таскаться по ним он мог только 6 сентября, потому что в следующий день, расписанный Александрой Фукс чуть ли не по часам, он занят был совсем другим. Поэтому первые исследователи казанских похождений Пушкина справедливо приурочили его беседу 6 сентября с Бабиным к кабакам именно Суконной слободы.

— Как и где она состоялась?
— Полагаю, все согласятся, что иногороднему «таскаться по кабакам» в поисках изюминок о нашествии на Казань Пугачева 59-летней давности — антипродуктивно. Ведь загородная Суконная слобода той поры, даже не считая площади ее выгонной земли (пастбища), была огромной. Это отнюдь не только район вокруг фабрики. Домовладений в слободе было более 600. А работных на фабрике людей, не считая членов их семей, — около 900. Это как десятая часть самóй Казани. Не ходить же Пушкину с Гаврилой по всем ее улицам с плакатом: «Ищу очевидцев Пугачева»!
Да и кабаков в Суконной слободе было три. Приставать в них к посторонним с расспросами, к сидельцам (продавец/бармен в питейном доме) или к хмельной братии — сродни рыбалке на поплавок.

— Как же Пушкину удалось в большой и чужой ему Суконной слободе найти нужного осведомителя о событиях полувековой давности?
— Я совершенно уверен, что в суконных поисках Пушкин был не один. Да и прямо на это указывает поэт Денис Давыдов в письме от 3 октября поэту же Николаю Языкову: «В Казани были Пушкин и Баратынский, отыскивающие сведения о Пугачеве. Из этого я заключаю, что они в союзе для сочинения какого-нибудь романа, в котором будет действовать Пугачев».
— Что же придумали две талантливые головы того времени?
— Полагаю, выход нашел Боратынский. Он тоже не был знатоком Суконной слободы. Да и в самой Казани был лишь наездами с 1831 года. Но…

По здешним литературным вечерам в доме Фуксов Евгений Абрамович был знаком с ректором университета Лобачевским. Николай Иванович интересовался поэзией Боратынского и, по свидетельству жены писателя Софии Великопольской, даже декламировал там его стихи. А родным братом ректора был… не кто иной, как содержатель (арендатор у владельца Гаврилы Осокина) в 1826—1836 годах Суконной фабрики адъюнкт технологии Алексей Лобачевский — суровый мужчина. При нем на фабрике из 972 человек умерло 336, сослано в Сибирь — 69.

Друзья-поэты поскакали к нему в офис, хорошо сохраняющийся внешне и поныне (ул. Петербургская, 50, к.6). А через Лобачевского-младшего найти фабричного старика, болтающего о похождениях Пугачева, было уже не трудно.
Немного о вирусах
Им оказался Василий Петров сын Бабин, работавший еще в 1801 году «разсыльщиком при конторе», можно сказать — белым воротничком в администрации фабрики.
По этой единственной известной рукописи, сделанной Пушкиным в Казани, чувствуется, что разговор с 63-летним стариком был обстоятельным. Но в текст 7-й главы «Истории…» вошли всего два эпизода из воспоминаний Бабина: один — о взятии повстанцами Суконной слободы, второй — о пленении суконщиков в лагерь Пугачева.

Бабину в 1774 году было 1,5—2 года, поэтому есть в его рассказе и ошибки. Например, о 110-летнем старике Кудрявцеве, убитом в церкви близь его загородного дома. На самом же деле церкви — имеется в виду Варваринской — там еще не существовало вообще. А генерал-майор Кудрявцóв был умертвлен в Богородицком монастыре, напротив его городского дома.
Но вместе с тем Бабин знакомит нас с уникальными топонимами того времени: 3-я Гора, Немецкое кладбище, Шарная гора, Горлов кабак напротив Шарной горы. Причем в его рассказе нет того, что стало в Казани еще одними устойчивыми вирусами. Напомню их в виде цитат:
«В конце Армянской улицы (ныне Петербургская),именуемой «Маленькое поле», находился популярный среди суконщиков «Горлов кабак».
Тут целых три вируса!

1. Улица Армянская в Казани кочевала. Ею были и нынешние Спартаковская, и Островского. Но никогда Петербургская.

2. В слободе была улица Малое Польцо. Называть ее Маленькое поле — все равно что нынешнюю Большую Красную улицу прозвать Большой Красненькой. Ныне это часть улицы Спартаковской.
3. Один из трех кабаков Суконной слободы был не на ул. Малое Польцо, а на ул. Соколова. Впоследствии это часть улицы Павлюхина. Но этим кабаком не мог быть Горлов кабак, находившийся, по описанию Бабина, против Шарной горы. Здесь же, около современного здания Татарской филармонии, никаких гор нет вообще! Соответственно, Горлов кабак не мог быть «в конце» ни одной из названных улиц.
Следуем дальше:
«Любимое место собраний и бесед казанских суконщиков — «Горлов кабак», в котором происходит беседа Пушкина со старым суконщиком».
На самом же деле место, где происходила беседа Пушкина с Бабиным, — неизвестно.

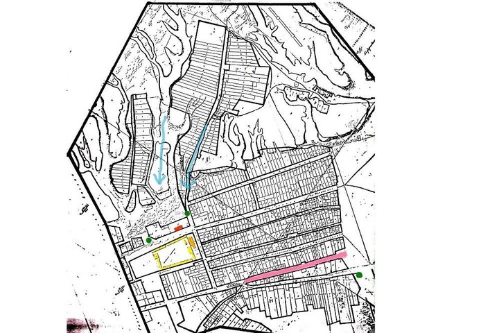
Вижу тут два варианта: или в доме Бабиных близ фабрики (на плане в синем круге),или — более чем весьма вероятно! — в каменном кабаке (иначе зачем надо было «таскаться по кабакам»), стоящем между домом Бабиных и фабрикой (в зеленом круге).

Этот бывший каменный т.н. Суконный питейный дом сохранился — ул. Петербургская, 53/1. Ныне в нем находится ООО «Центрсельхозхимия».
— Это и есть легендарный Горлов кабак?
— Нет. Во-первых, каменные питейные дома (кабаки) появились лишь после «УСТАВА О ВИНѢ» Екатерины II 1781 года, согласно которому в городах должны были быть заведены казенные питейные дома с запрещением покупки алкоголя окроме, как из них. На следующий год архитектор Василей Кафтырев «посадил» их на план Казани с предместьем, между прочим сделав их своего рода долговременными реперами на углах кварталов. То есть — при восстановлении города после пугачевской катастрофы.
Во-вторых, по Бабину Горлов кабак был против Шарной горы. Тогда где же была эта Шарная гора?

Топография района напротив Суконной фабрики показывает нам на плане Кафтырева 1782 года известные в XIX веке три горы Суконной слободы, по вершинам которых сложились одноименные улицы:
1-ю Гору (ныне — ул. Ульянова-Ленина);
2-ю Гору (ныне — ул. Волкова);
3-ю Гору (ныне — ул. Калинина).
А еще и четвертую гору — безымянную. На плане она между 2-й и 3-й Горами. Как и 3-я Гора, она находилась на маршруте продвижения к слободе полка, ведомого самим Пугачевым, а ныне является горой, на которой стоит бывшая Шамовская больница. Видно, что в XVIII веке эта гора больше других гор выдавалась вперед и ближе других «подступала» к фабрике. Именно под этим выступом и находился (помеченный в красном круге на плане слободы 1849 года) деревянный кабак, по моему разумению — Горлов.
Он сгорел в 1849 году, уже после приезда Пушкина. Его положение приходится на место по адресу ул. Калинина, 1, где еще недавно был Суконный рынок. А поскольку Пушкин в письме к жене называет не один кабак («таскался по кабакам»), то, вероятно, Бабин сводил искателей и в него.
В этот же день Боратынский заезжал к Александре Фукс сообщить весть, что в Казани Пушкин, желающий видеть Фуксов. Сам же он попрощался с ней и отъехал в одно из фамильных поместий.
А что же Пушкин? Не на диване же прошел его первый вечер в Казани? Я считаю, что он был на вечере у своего знакомого по Петербургу поэта-переводчика Эраста Перцова.
— Но об этом же нет никаких упоминаний!
— Совершенно верно. Однако!
Выдающийся казанский генеалог Николай Яковлевич Агафонов в 1880-е годы брал интервью у двух известных казанцев, которым в 1833 году было обоим по 14 лет. Это Александр Рындовский и Гаврила Горталов. Оба они сообщили, что Пушкин останавливался у Эраста Перцова. Запомним это.
Но мы уже установили, что это не так. Тогда с чего бы через полвека возникли такие ассоциации с Перцовым у тогдашних мальчиков?..

Член Казанского общества любителей отечественной словесности
А кроме того, Гаврила Горталов будущему академику Николаю Лихачеву поведал забавную историю, связанную с пребыванием Пушкина в Казани. Николай Павлович описал ее в 1886 году с некоторыми, правда, опасениями в ее достоверности в своей работе «Григорий Николаевич Городчанинов и его сочинения». Вот она.
Будто бы 7 сентября (об этом — в следующей части интервью) у Фуксов был не только Пушкин, но проходил целый литературный вечер, на котором присутствовал Горталов и объект здешних насмешек, декан отделения словесных наук университета, профессор Григорий Николаевич Городчанинов, он же — председатель местного Общества Любителей Отечественной Словесности.
При входе в зал Перцов (обратите внимание: не кто-то, а Перцов) якобы шепнул Пушкину: «А знаешь, Пушкин, ведь у тебя здесь начальник». — «Это кто?» — «Да, ведь ты член здешнего Общества, так его председатель — вон тот заслуженный старик. Ты ему не представился, смотри, поправься». Пушкин догадался, в чем дело, и быстро подошел к покрякивающему в сторонке Городчанинову:
«Честь имею представиться, — начал Александр Сергеевич с почтительным поклоном, — член Казанского общества любителей отечественной словесности — Пушкин Александр».
«Очень рад, очень рад», — отвечает председатель общества.
«Прошу великодушно простить, что за недостатком времени не мог представиться раньше», — продолжает Пушкин.
«Ничего, — ко всеобщему удовольствию пресерьезно возразил Городчанинов, — мы, старые люди, не взыскательны».
На этом вечере Городчанинов читал свое стихотворение «Мысли при взгляде на мельницу». Пушкин все время сидел, прикрывши глаза рукою, и несколько раз громко на всю комнату восклицал: «Прекрасно, превосходно!» — чем еще больше обрадовал автора.
— Как же примирить эти противоречия, никого не уличая в выдумках?
— Я вижу только одно объяснение.
Описанная Горталовым вечеринка была.
Она могла быть только 6 сентября. Как увидим далее, сама Александра Фукс сообщила в письме, что на следующий день, 7 сентября, в ее доме не было вечеринки; из гостей были только Пушкин и Перцов.
Она была не у Фуксов и не у уехавшего Боратынского (это был бы перебор), а у Перцова. Ведь дом Перцовых, как и дом Фуксов, в то время тоже был центром культурной жизни города. А в цепочке воспоминаний место встречи казанцев с самим Пушкиным могло быть или неумышленно, или преднамеренно изменено.

— А что натолкнуло на такой вывод?
— На такой вывод натолкнул… «домашний костюм», в котором на следующий день, 7 сентября, Пушкин приехал на обед к Эрасту Перцову. По воспоминанию младшего брата Платона Перцова Пушкин был так одет, «так как условился с Эрастом Петровичем, чтобы никого постороннего не было». Он «очень смутился, увидев много народу в зале, попятился и хотел из передней улепетнуть домой». А выяснив, что это была одна семья, «оправился и вошел в залу».
— Когда же об этом обеде могли «условиться» старые знакомые?
— Только в предыдущий день. Может быть, Перцов тоже участвовал в суконных похождениях поэтов. Или к нему отвез Пушкина уезжающий Боратынский. Ведь по подробному описанию Александры Фукс день 7 сентября, до обеда у Перцовых, Пушкин провел один.
Но об этом впредь.
А сейчас напоследок представим, в каком виде Пушкин мог сидеть на втором этаже дома Перцовых, в столовой с окнами на нынешний Вахитовский холм.
Домашним мужским костюмом пушкинской поры являлся халат. В последние годы жизни у Александра Сергеевича был любимый красный клетчатый архалук; возможно, его он и взял в путешествие 1833 года. А после смерти поэта Наталья Николаевна подарила его ближайшему другу мужа последних лет Павлу Нащокину.
В 1839 году Павел Воинович заказал ретроспективный портрет великого друга шведскому художнику Карлу Петеру Мазеру, автору в последующем 26 портретов декабристов, сделанных в Сибири. Нащокин сам позировал Мазеру в пушкинском халате, делал массу замечаний и считал работу самой точной.
На этом же портрете отчетливо виден огромный ноготь на пальце Пушкина, который увидел другой брат Эраста Перцова — опять-таки 14-летний Александр во время послеобеденной игры приятелей в шахматы.
Кто победил — оставляю на раздумье читателей. О том, чем Пушкинзанимался в свой второй день в Казани — в следующей части.