Бассейны, бульвар с площадью: в Казани задумали построить еще три новые школы

Как выяснило «Реальное время», власти Казани планируют строительство сразу трех новых школ. Согласно проектам, которые есть в распоряжении издания, учебные заведения появятся в Вахитовском и Приволжском районе, на улицах Магистральной и Меховщиков. Как рассказали в пресс-службе мэрии города, документы находятся на согласовании и еще не утверждены, а реализация возможна при соответствующем финансировании.
Школу на Меховщиков окружат ЖК и ТЦ
Будущая школа на улице Меховщиков рассчитана на 1100 мест. Учебное заведение затронет не только Меховщиков, но и улицы Портовую и Девятаева. Школа будет окружена торговым комплексом с паркингом и отелем, двумя жилыми комплексами и зеленой зоной.
Говоря о многоэтажных ЖК, то в 2021 году мы рассказывали, что в районе улиц Меховщиков и Портовой собираются построить пять жилых комплексов с сопутствующими социальными объектами. Общая площадь жилого фонда пяти ЖК составит 311,7 квадратного метра для 13,8 тысячи человек. Дома здесь будут иметь до 25 этажей. Парковки предусмотрены на поверхности и внутри домов для не менее чем 6 119 машин, в том числе для жителей — 4 тысячи.
О строительстве же торгового центра в этом районе мы писали также в 2021 году. Согласно проекту, в процессе реновации территории речного порта там должны появиться здания административно-торгового комплекса с отелями, многофункционального общественного комплекса, торгово-административного центра с продовольственными и непродовольственными товарами.
Возвращаясь к школе на Меховщиков, общая площадь проекта планировки учебного заведения должна составить 2,36 гектара. Заметим, что в проектной документации говорится о сокращении площади строительства школы. Размер участка под ее создание был уменьшен на 8%. Причина — стесненная городская застройка. Отмечается, что это будет индивидуальный проект школы, на ее территории могут появиться специальные беговые полосы, а также лыжный и беговой маршрут.

Вместе со спортивными маршрутами район, где будет находиться школа, собираются обеспечить и транспортной инфраструктурой. К учебному заведению планируют запустить автобусы, трамваи и троллейбусы.
О нехватке учебных заведений здесь не сообщалось, впрочем, как и о строительстве новых. Зато говорилось о ремонте уже имеющихся, так, по словам главы Вахитовского и Приволжского района Альберта Салихова, в 2023 году планируется ремонт 9 школ. Ремонтные работы затрагивают школы №80, 82, 83, 88, 98 и 150, а также гимназии №6, 16 и 19.
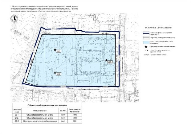
Школы на Магистральной превратят в образовательный кластер
Что же касается школ на улице Магистральной, то это будет целый образовательный кластер. Будущие учебные заведения рассчитаны на 1800 мест, сюда же будет входить и центр дополнительного образования. Он должен вмещать в себя до 300 человек.
Комплекс школ будет состоять из трех основных зон:
- учебная зона (будет закрытой приватной территорией);
- спортивная зона (также сделают закрытой территорией);
- бульвар с площадью;
- зона дополнительного образования (эти две зоны будут закрыты лишь наполовину).

Обе школы должны быть оснащены бассейном. Общая площадь и школ, и центра дополнительного образования составляет 8,25 гектар. До учебных заведений также планируется запустить общественный транспорт.
«Сейчас говорить о сроках строительства школ, как и о застройщике, преждевременно»
В пресс-службе мэрии Казани сообщили «Реальному времени», что проект находится на согласовании и не утвержден:
— Речь идет о проекте планировки территории (ППТ), который сейчас находится на согласовании и еще не утвержден. Более того, ППТ не гарантирует моментальной реализации заложенных решений, но при этом является основой при развитии территории. Реализация предусмотренных в ППТ планов возможна при соответствующем финансировании. Поэтому сейчас говорить о сроках строительства школ, как и о застройщике, преждевременно.
«На новые школы требуется 60 млрд рублей»
На просьбы местных жителей о строительстве новых школ в мэрии города отвечают, что управление образования ежегодно подает заявки в Минобрнауки РТ. Все дело в том, что школы строятся за счет федерального бюджета. В среднем на строительство одного учебного заведения требуется порядка 1,5 миллиарда рублей. Для того, чтобы закрыть потребность в местах в образовательных организациях города, требуется около 60 миллиардов рублей. По словам городских властей, это сопоставимо с двухгодовым бюджетом Казани.
Представители мэрии говорят, что по темпам строительства школ и детсадов Казань опережает все остальные города-миллионники страны, кроме Москвы и Санкт-Петербурга. Там же добавляют, что население города растет быстрыми темпами, поэтому и потребности в образовательных учреждениях увеличиваются.
— По мере выделения средств в городе строятся школы и детские сады, средства выделяются в рамках федеральных и региональных программ, по которым город регулярно направляет заявки, — сообщили в городской администрации.

В Казани уже пообещали открыть сразу 4 новые школы
О нехватке новых школ власти Казани говорят уже не первый год. Местные жители регулярно пишут в соцсетях чиновников с просьбами построить им их в том или ином районе. Например, добиться строительства учебного заведения уже который год не могут жители с улицы Зур Урам. Власти республики обещали построить новую школу в ЖК МЧС. Она должна быть рассчитана на 1500 мест, но земля под учебное заведение не передана в собственность властей Татарстана. Там, кстати, должны построить не только школу, но и два детских сада.
С проблемой нехватки мест столкнулись и жители Приволжского района. В прошлом году они не могли записать своих детей в лицей №186. В школе не хватало мест для первоклассников. Местные жители даже планировали дежурить всю ночь у школы, чтобы записать своих детей. Эту проблему власти города решили путем строительства дополнительного пристроя. Открыться он должен уже к этому учебному году.
Добавим, что в этом году в столице Татарстана откроют четыре новые школы. Как сообщает пресс-служба мэрии города, они будут рассчитаны на 6 тысяч учеников. Учебные заведения будут построены на улицах: Курынова, Рауиса Гареева, Нигматуллина и в ЖК «Салават купере».
Ранее мы также рассказывали, что новую школу собираются открыть в поселке Салмачи, который находится в Приволжском районе Казани. Из-за ее строительства березовая роща, находящаяся на том же участке, может быть вырублена. Занять учебное заведение должно 25,7 тысячи квадратных метров.