Итоги дня: график выходных на 2024 год, врачи года в Татарстане, подворовый обход после трагедии в Саитово

«Реальное время» подводит итоги дня и публикует подборку самых важных и интересных новостей за понедельник, 19 июня:
- Сегодня в Татарстане прошло совещание с правоохранительными органами, где раису республики Рустаму Минниханову была доложена оперативная ситуация с пожарами. Он поручил главам районов Татарстана усилить работу по проведению противопожарных мероприятий, особое внимание он призвал уделить многодетным семьям.
- Вчера в частном доме в селе Саитово Тукаевского района Татарстана произошел сильный пожар, на котором погибли семь человек: четверо из них — дети. Прокуратура Татарстана организовала проверку по факту пожара. СУ СК России по республике возбудило уголовное дело по ч. 3 ст. 109 УК РФ (причинение смерти по неосторожности).

- Рустам Минниханов посетил строительную площадку нового здания Татарского государственного академического театра имени Галиасгара Камала. Новый объект расположится в центре Казани на берегу озера Кабан. Главу республики ознакомили с основными этапами строительства. Так, например, в настоящий момент на объекте ведутся работы по забивке свайного поля и устройству бетонной подготовки.
- Вместе с Миннихановым стройплощадку посетили министр строительства, архитектуры и ЖКХ Татарстана Марат Айзатуллин, мэр Казани Ильсур Метшин, генеральный директор ГУП «Татинвестграждан-проект» Адель Хуснутдинов и директор архитектурного бюро Wowhaus Олег Шапиро.

- В этом году в программу татарского народного праздника Сабантуй в Казани решили добавить «больше национальных красок». Акцент сделали на многообразии многонационального народа, который веками в мире и дружбе проживает на территории Татарстана. Сабантуй в Казани пройдет в субботу, 24 июня. Его отметят на четырех площадках — в Березовых рощах жилых массивов Мирный и Дербышки, в лесопарковой зоне озера Лебяжье и в Международном конно-спортивном комплексе «Казань».
- Отмечается, что на всех площадках проведения Сабантуя в Казани будут работать досмотровые зоны: гостей праздника просят соблюдать все правила безопасности, не брать с собой крупные вещи. Также желающих посетить праздник призывают одеваться по погоде: по прогнозу Гидрометцентра Татарстана, 24 июня в республике ожидается прохладная погода.
- В Казани на Сабантуе выступят звезды татарской эстрады: на площадке в поселке Мирный можно будет увидеть Эльмиру Калимуллину, Артура Исламова, Зайнаб Фархетдинову и других. Ожидаются выступления Асафа Валиева, Айгуль Хайри, оркестра «Казан Нуры». На майданах также выступят артисты татарской эстрады, танцоры и творческие коллективы.

- Минтруд России опубликовал проект постановления, которое касается праздничных дней в 2024 году. Так, например, выходные, приуроченные к 1 Мая, в следующем году будут четырехдневными. В целом в 2024 году россияне будут отдыхать: с 1 по 8 января (сами новогодние каникулы продлятся 10 дней и начнутся 30 декабря 2023 года); с 23 по 25 февраля; с 8 по 10 марта; с 28 апреля по 1 мая и с 9 по 12 мая (на «майские праздники» будем дважды отдыхать по 4 дня подряд); 12 июня; с 3 по 4 ноября; с 29 по 31 декабря.
- В день летнего солнцестояния, 21 июня, в Госдуму внесут законопроект о возврате перехода на летнее время, сообщил депутат Михаил Матвеев. Согласно данным опроса, устроенного парламентарием, по состоянию на 19:19 участие в нем приняли более 5 тысяч человек, причем 63 процента выступили против этой инициативы.
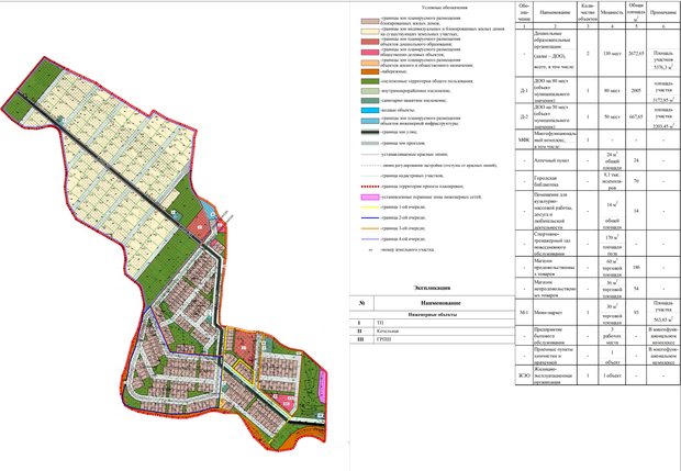
- В казанских поселках продолжат уплотнять застройку: юго-восточнее жилого массива Вишневка в Советском районе, вдоль реки Ноксы могут появиться почти 400 индивидуальных и блокированных жилых домов общей площадью 47,8 тыс. кв. м. Вместе с ними планируется построить два детсада и многофункциональный комплекс, а вот школа в этом месте не предусмотрена. На данный момент проект планировки находится на стадии общественных обсуждений, которые продлятся до 8 июля. Подробности — в материале «Реального времени».

- Казани для полного оснащения всех объектов образования элементами обеспечения их безопасности необходимо около 144 млн рублей, заявил начальник Управления информационных технологий и связи исполкома города Дмитрий Кремлев. Он также рассказал, что по итогам работ в прошлом году было сэкономлено 83 млн рублей, эти деньги пойдут на монтаж системы охранной сигнализации в 26 школах и 86 детских садах. Оснащены системой речевого оповещения 30 школ и 10 детских садов.
- Правительство утвердило новую стратегию (до 2030 года) развития фармацевтической промышленности. Планируется, что рост доли лекарств российского производства в общем объеме потребления вырастет до 66,6%. Еще на 12% должна вырасти доля российских препаратов, входящих в перечень стратегически значимых лекарственных средств, производство которых ведется по полному циклу. Через 7 лет их доля должна быть на отметке 80%.
- Как выяснило «Реальное время», в Казанском кремле отремонтируют еще несколько зданий — среди ранее неизвестных Архиерейский дом, Главный (восточный) корпус Пушечного двора и Манеж. Проекты обойдутся в 8,3 миллиона рублей. Согласно документам, их предстоит разработать до 10 декабря текущего года с получением всех необходимых согласований, а также заключением историко-культурной экспертизы.

- Голосование на досрочных выборах президента Узбекистана в Татарстане охватит более 30 муниципалитетов. Графики визитов в районы Татарстана уже определены, ведется информирование граждан Узбекистана, проживающих там. Площадка для голосования будет работать и в Казани на базе Генерального консульства Узбекистана.
- Совет директоров акционерного общества «Татнефтехиминвест-холдинг» решил не выплачивать дивиденды по обыкновенным акциям за 2022 год. Решение по итогам заседания было принято единогласно. Чистую прибыль в размере 1,2 миллиарда рублей направят на развитие акционерного общества.
- В Татарстане победителем республиканского конкурса «Ак чәчәкләр» в номинации «Врач года» стала главный внештатный специалист по анестезиологии-реаниматологии Минздрава республики, доктор медицинских наук Айнагуль Баялиева. Медсестра кабинета реабилитации стомированных пациентов Республиканского клинического онкологического диспансера МЗ РТ им. профессора М.З. Сигала (РКОД) Миляуша Шарафутдинова победила в номинации «Медицинский работник года».

Ключевые события 481-го дня специальной военной операции на Украине:
- Служба внешней разведки России получила данные о решении госинспекции ядерного регулирования Украины отправить на переработку партию облученного топлива с Ровенской АЭС. В СВР это расценили как намерение Киева продолжить работу над «грязной ядерной бомбой».
- Начальник войск радиационной, химической и биологической защиты ВС России Игорь Кириллов заявил, что военно-биологические исследования, направленные на поиск эффективных методов применения возбудителей инфекционных болезней, позволяют США формировать их искусственные очаги. Кириллов отметил, что из-за возрастающей обеспокоенности мирового сообщества Пентагон вынужден менять свою тактику при организации работ «двойного назначения».
- В Минобороны России также сообщили, что сегодня ночью Вооруженные Силы Российской Федерации нанесли групповой удар высокоточным оружием большой дальности морского базирования по местам хранения военной техники иностранного производства. Все назначенные объекты поражены. Цель удара достигнута. В течение суток наиболее активные попытки наступательных действий подразделения ВСУ предпринимали на Южно-Донецком и Донецком направлениях.
- На Южно-Донецком направлении в результате грамотных и самоотверженных действий подразделений группировки войск «Восток», ударов авиации и огня артиллерии на Времевском выступе в течение суток отражены три атаки сводных подразделений ВСУ.
- На Донецком направлении активными действиями «Южной» группировки войск успешно отражены четыре атаки противника в районах населенных пунктов Первомайское, Петровское и Старомихайловка Донецкой Народной Республики.
- На Купянском направлении в районе населенного пункта Тимковка Харьковской области ударами армейской авиации, огнем артиллерии и активными действиями подразделений Западной группировки войск пресечена деятельность двух украинских диверсионно-разведывательных групп.
- На Красно-Лиманском направлении ударами авиации, огнем артиллерии группировки войск «Центр» нанесено поражение подразделениям противника в районах населенных пунктов Кузьмино, Макеевка Луганской Народной Республики, а также в Серебрянском лесничестве.
- В районах населенных пунктов Ямполовка Донецкой Народной Республики, Червоная Диброва и Кременная Луганской Народной Республики пресечена деятельность трех украинских диверсионно-разведывательных групп.
- Оперативно-тактической и армейской авиацией, ракетными войсками и артиллерией группировок войск Вооруженных Сил Российской Федерации в течение суток нанесено поражение 93 артиллерийским подразделениям ВСУ на огневых позициях, живой силе и военной технике в 102 районах.
Илина Хакимова
ОбществоВластьИнфраструктураМедицинаКультураНедвижимостьПромышленность