Казгордума утвердила названия трех улиц в ЖК «Салават Купере» и тринадцати улиц в «Поселке офицеров»

Казгордума утвердила названия трех улиц, сформированных в новом жилом комплексе «Салават Купере». Таблички на домах должны появиться в течение месяца.

Улицы получат имена переводчика и языковеда Нурихана Фаттаха, героя войны Виктора Сажинова и народного артиста Айрата Арсланова, говорится в решении, опубликованном в сборнике документов мэрии.

Строительство комплекса началось весной 2014 года. В этом году должна быть сдана первая очередь «Салават Купере».

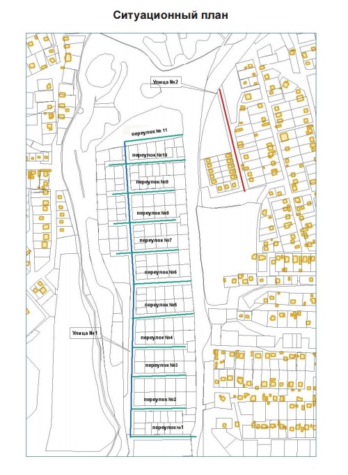
Также утверждены названия двух улиц и 11 переулков в «Поселке офицеров». Улицы получат имена участников ВОВ Ивана Кабушкина и Амет-​Хана Султана, переулки будут названы Загадочный, Баланлык, Ташлык, Лавровый, Ялан, Тружеников, Гаилэ, Дивный, Армут, Экият и Тоташ.

Подписывайтесь на телеграм-канал, группу «ВКонтакте» и страницу в «Одноклассниках» «Реального времени». Ежедневные видео на Rutube и «Дзене».

Новости партнеров